About Me
Portfolio
Connect with Me
About Me
Portfolio
Connect with Me
Sakshi Jha
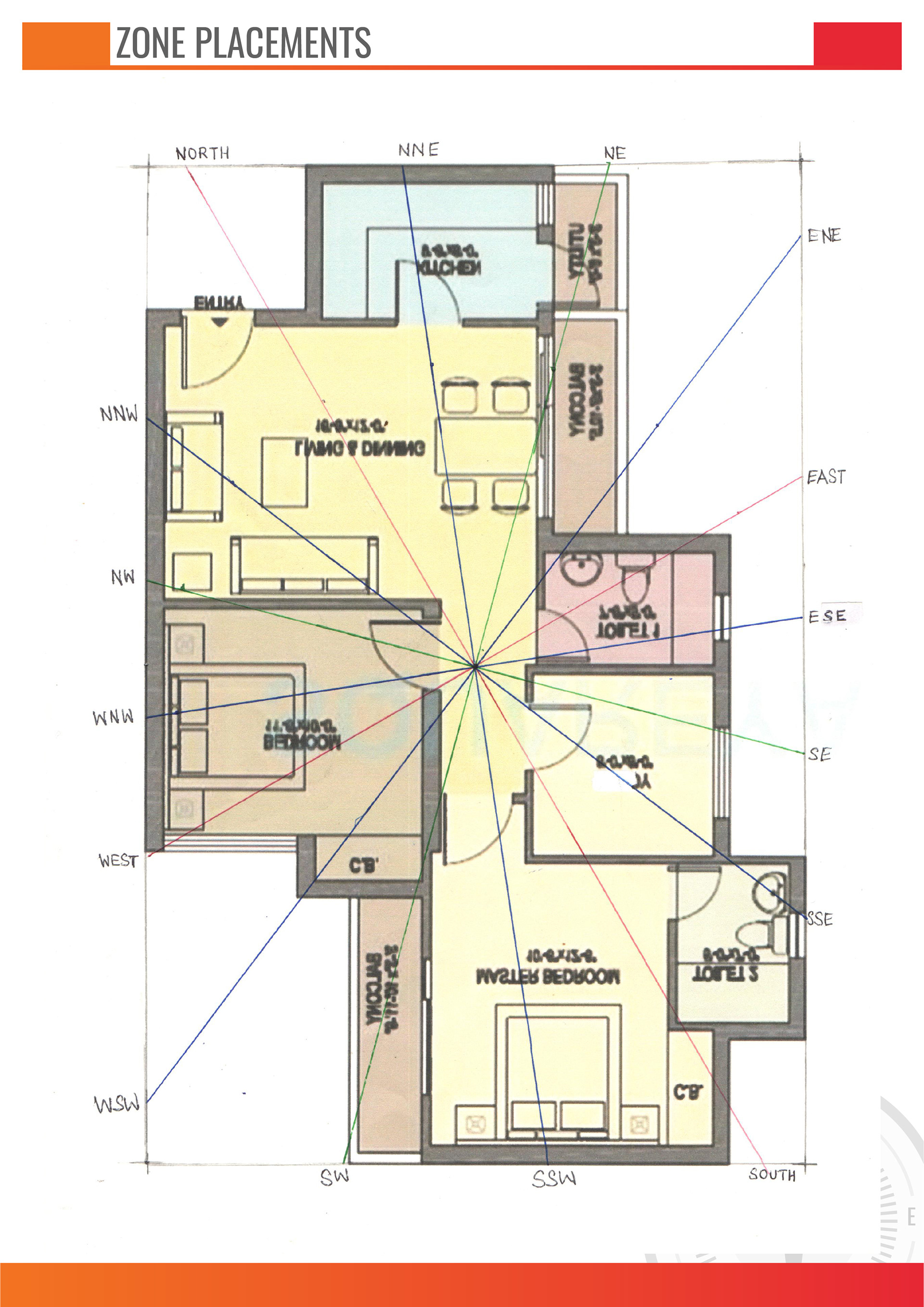
Vastu Consultancy Report Design
Report Design
↑
Back to Top